Ana Costanzo
Interior Architecture
Work
About
Awards + Publications
Ana Costanzo
Interior Architecture
Work
About
Awards + Publications
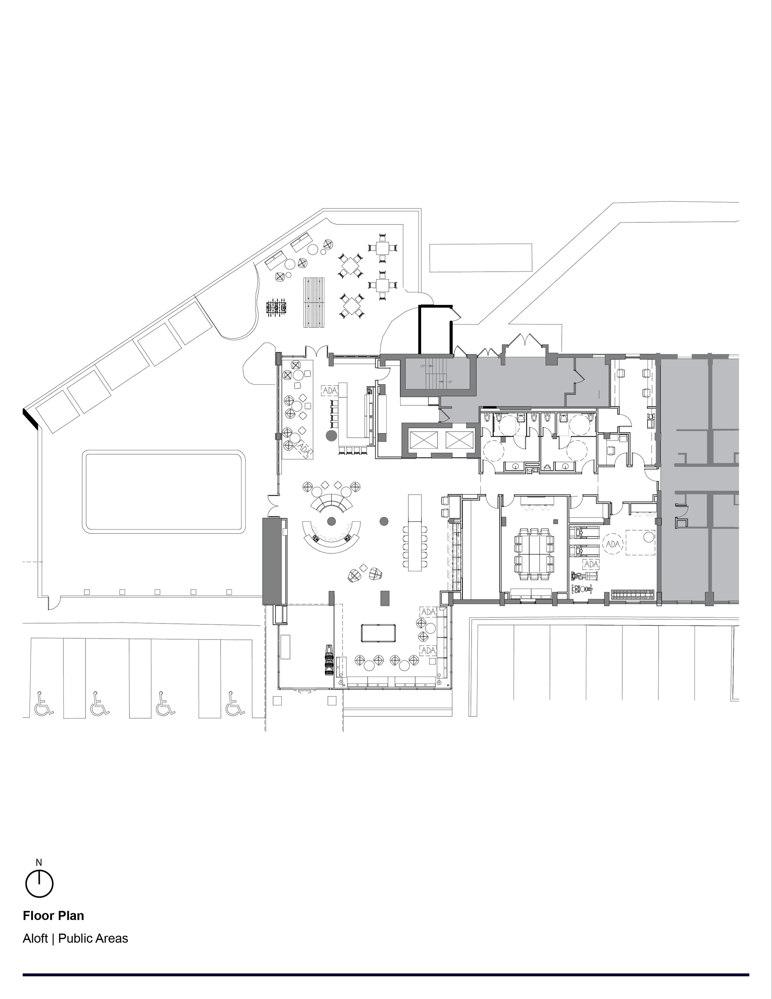
Aloft Dadeland
Hospitality
All
2700 Post Oak Blvd.
2 Belvedere Dr.
1000 Main St.
Calle Ocho
Hacienda Alsacia Farmhouse
Little Village
120 S. Riverside
Spring St. + 4th St.
Doral
Punta Carretas
SE Finanacial
Focus Brands HQ
Pipeline Fort Lauderale
Aloft Dadeland
2700 Post Oak Blvd.
2 Belvedere Dr.
1000 Main St.
Calle Ocho
Hacienda Alsacia Farmhouse
Little Village
120 S. Riverside
Spring St. + 4th St.
Doral
Punta Carretas
SE Finanacial
Focus Brands HQ
Pipeline Fort Lauderale
Aloft Dadeland